Excelente Oportunidad de Inversión, nunca visto en estas condiciones!!
Se remata muy buena casa a estrenar de 1 dormitorio y un baño en construcción tradicional y techo de Isopanel, en muy buen terreno de 500 m2 a 5 minutos del Balneario La Paloma, Playa Serena y Laguna de Rocha. Con toda la contribución año 2026 pagada, totalmente regularizada ante BPS, Catastro, Dgi, e Intendencia Departamental de Rocha.
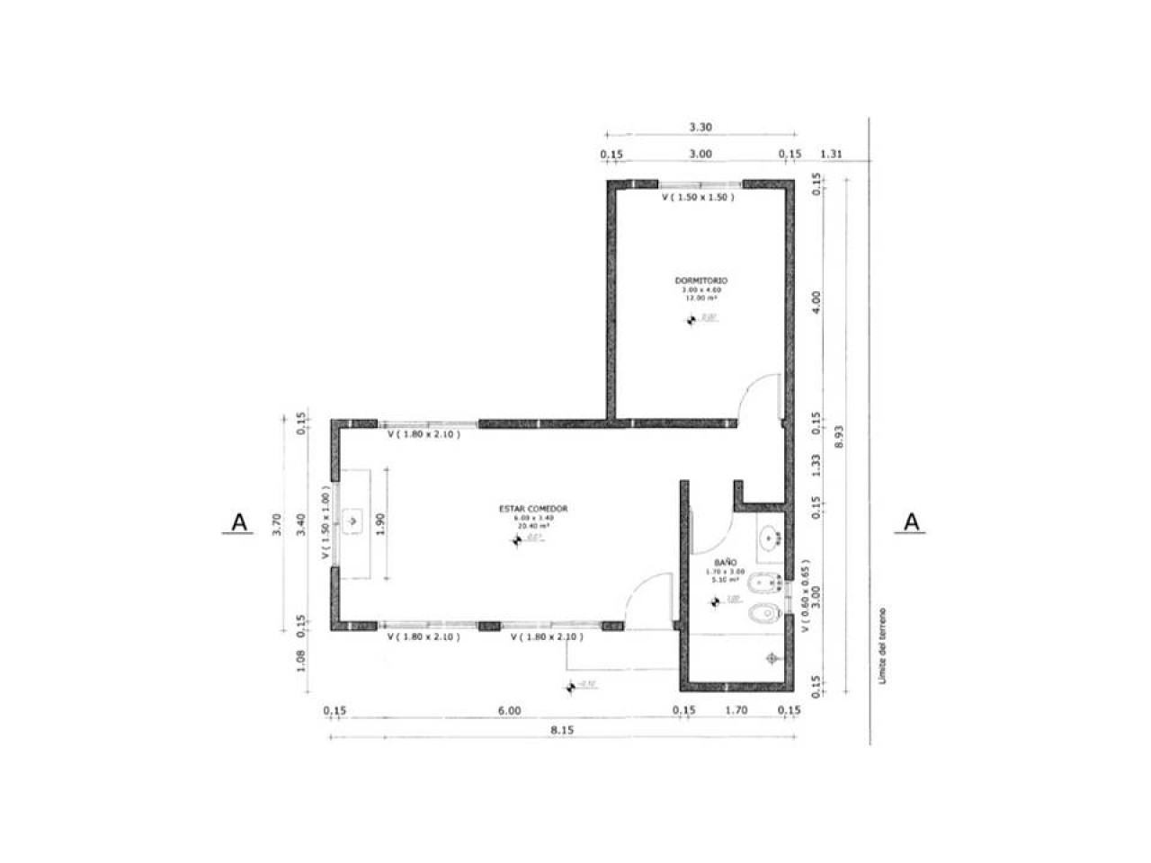
Descripción:
- Casa de construcción tradicional, paredes de ticholos y techo de Isopanel.
- Área de la casa: 46 m2 (ver plano en fotos).
- Área del predio: 500 m2
- Totalmente terminada, instalación eléctrica y sanitaria.
Localidad catastral: Jean Krug
Departamento: Rocha - Uruguay
Manzana 36 - Solar 6
Superficie: 500 m2 (12,50m. de frente x 40m. de fondo).
Coordine Visita al 099 912 941.
* Lea detalladamente las condiciones, requiere entrega inicial.
Promociona Puntorío Propiedades
NO SE LO PIERDA!!
Importante: Recuerde que la realización de una oferta en remate público, es un compromiso de compra. Por lo que luego de realizar una oferta, no se puede retirar la oferta, asumiendo todas las condiciones de entrega, financiación y comisión e imp. de remate, estado del bien, sin ningún tipo de reclamo.
| Fecha / Hora | Oferta | Usuario |
|---|
